Tavastia Privacy

Hämeenlinna – Sinu mitmekülgne villapuhkus
Vaheta triiksärgid ja kliinilised koosolekuruumid villaste sokkide ja dresside vastu – Tavastia Privacys saad serveerida päevakohvi kaetud terrassil, nautida lõkkeõhtut metsaaia kotalaavus või minna matkama, et täita pea värske õhuga!

Põgene sagimisest ja naudi rahu Tavastia Privacy’s, mis asub enda eraldatud metsamõisa krundil Hämeenlinna lähedal Evo matkapiirkonna juures. See moderniseeritud metsamaja pakub privaatsust 2,5 hektarilisel maalapil ning sobib ideaalselt gruppidele suurusega 1 kuni 18 külalist, kes otsivad majutust, konverentse või aastaringseid maajuhuseid.

ÜLDINFO: Tavastia Privacy on avar varjupaik, kus seguneb vana maailma talumaja võlu kaasaegsete mugavustega. See majutuskoht rahuldab erinevaid vajadusi alates rahulikest konverentsidest kuni lõõgastavate kabiinipuhkusteni, olles seatud Soome maalilise maastiku keskele.

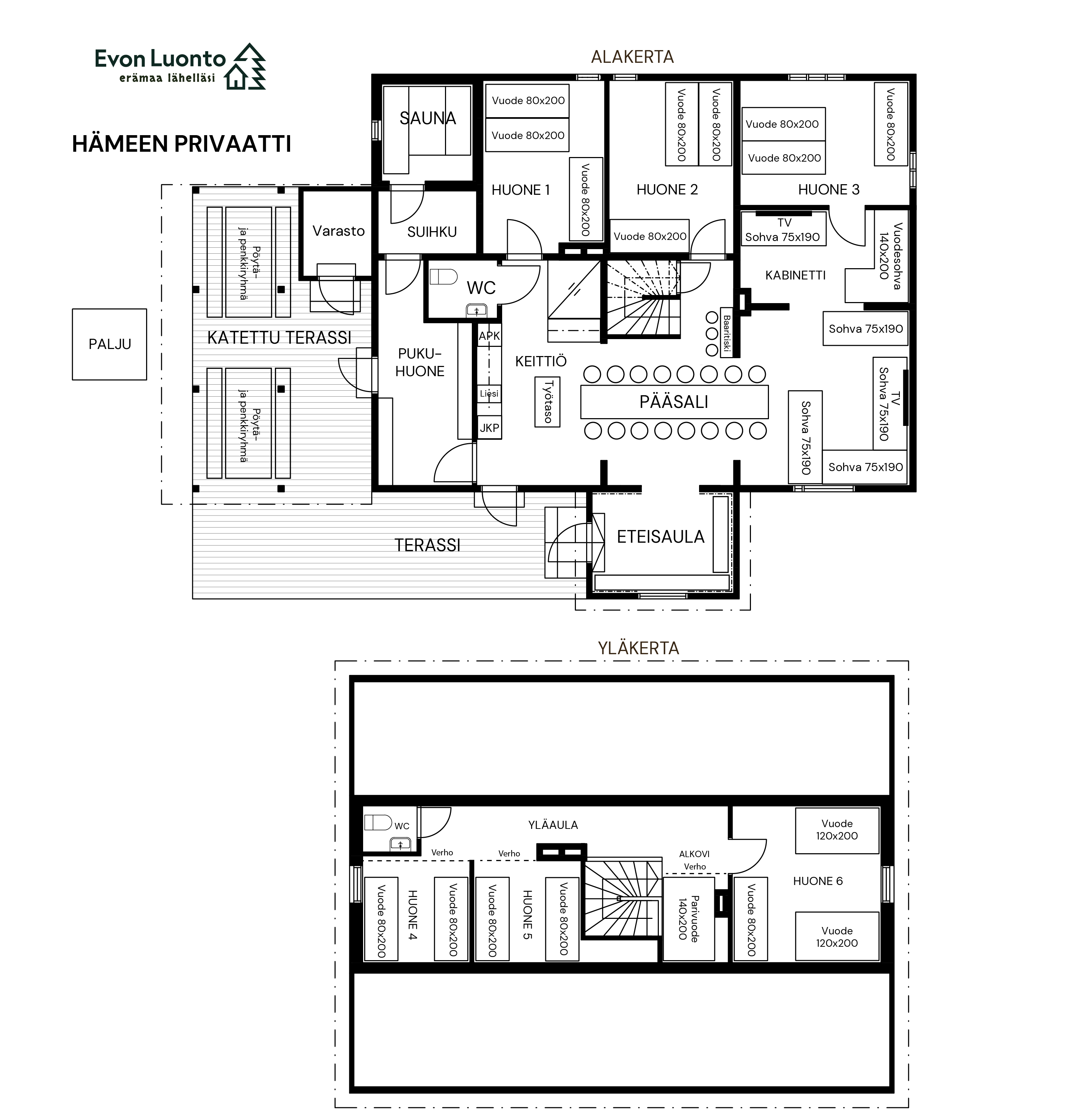
PEASAAL JA LOUNGE/KONVERENTSIARUUMID: Peasaal ja konverentsiruum mahutavad umbes 20 külalist pika laua ja väikese baarileti juures. Ruum on varustatud tasuta Wi-Fi ühenduse ning 65-tollise ja 50-tollise lameekraaniga televiisoritega esitlusteks ja meelelahutuseks. Peasaalist kõrval asuv lounge-ala sobib ideaalselt õhtuste kokkusaamiste ja rühmaürituste jaoks.

MAJUTUS: Majutust pakutakse kuni 18 külalisele, jaotatuna 6–7 magamistuppa. Alumisel korrusel on 3 magamistuba ning peasaalis ja lounge’is diivanvoodid, mis pakuvad 4–6 lisavoodikohta. Ülemisel korrusel on 3 magamistuba ja väike nišš koridori ääres. Pakutakse tekke, patju ja lisavoodi madratseid täiendavate magamiskohtade jaoks.

KÖÖK: Täielikult varustatud köök on mõeldud vähemalt 25 külalisele. Köögitehnika hulka kuuluvad elektripliit ja ahi, suur külmik, sügavkülmik, nõudepesumasin, mikrolaineahi, Moccamaster kohvimasin, veekeetja ja röster.

SAUNAD, DUŠID JA WC-D: Sisemine saun on elektriküttega ja mahutab 6–8 inimest, otse juurdepääsuga terrassile jahutamiseks. Välimine saun on puiduküttega ning mahutab massiivses palksaunas kuni 10 saunakäijat. Peamajas on duširuum ja 2 tualetti.

VÄLJASÕIDU- JA KÜTTIMISRUUMID, KÜTTEPADJAD: Katusealune terrass sisaldab söögilaudu peaaegu 20 külalisele. Metsaaed pakub metsateemalist terrassirühma ja laavut. Küttinurk asub kesklinnas, peamaja terrassi kõrval ja mahutab kuni 8 inimest mõlemas.

VÄLISÜRITUSED: Lähedal asuvad Evo matka- ja suusarajad pakuvad ulatuslikke matka- ja suusaradu.

HINNAD: Broneerimishinna hulka kuuluvad multifunktsionaalse villa rajatiste hinnad (umbes 200 ruutmeetrit), sisemine saun ja põhilised mugavused. Saadaval on täiendavad teenused, sealhulgas saun, kütteseadmed, laavu, lõpppuhastus, eelnevalt valmistatud voodilinad, rätikud, programmiteenused, söömise teenused, saunade ja kuumaveepaakide ettevalmistamine. Kõik täiendavad teenused tuleb broneerida vähemalt 14 päeva enne saabumist.

PÄRING: Küsige Tavastia Privacy broneerimishinna ja täiendavate teenuste kohta, täites päringuvormi. Konkurentsivõimeline hinnastamine on saadaval, eriti nädala päevadel ja turismihooaja välisel ajal.

Nautige Tavastia Privacy’st oma järgmist kokkusaamist, konverentsi või rahulikku kabiinipuhkust Soome looduse ilu keskel!

Tavastia Privacy põhiteave

  • 1–20 külalist päevakasutuseks
  • 1–18 magamiskohta 6–7 magamistoas
  • Konditsioneer
  • 1 dušš ja 2 WC-d
  • Varustatud köök
  • Toidu-, joogi- ja serveerimisnõud
  • Beebitool
  • Oma alkohoolsed joogid lubatud
  • 1 elektrisaun ja 1 puuküttega saun
  • Grillikatus (ilma palligrillideta)
  • 2 laiekraaniga televiisorit (muid AV-seadmeid pole)
  • Tasuta wifi-ühendus
  • 2 kümblustünni 6 inimesele
  • Mitmed matkarajad lähiümbruses

Vahemaad ja lähedal asuvad kohad

Hinnanäited Tavastia Privacy's

  • 20 külalise ööbiv puhkus või pidu alates 37 €/in/öö
  • 12 külalise ööbiv iseteeninduskoosolek alates 48 €/in/öö
  • Ettevõtte virgestuspäev 12 inimesele alates 74 €/in/öö
  • 20 külalise nädalavahetus alates umbes 56 €/in/nädalavahetus (R–P)
  • 15 külalise puhkenädal alates umbes 135 €/in/nädal
Märkus: Ülaltoodud hinnad on orienteeruvad ja kehtivad hooajavälisel ajal. Hooajal on hinnad kõrgemad. Teeme siduva pakkumise igale grupile vastavalt ajale, külaliste arvule ja rendi kestusele. Jätame endale õiguse muuta meie teenuste hindu, mis on avaldatud kolmandate osapoolte veebilehtedel.
Kirvesniemi 72 16900 Hämeenlinna.

Villa põhiandmed

  • Kogupindala 200 ruutmeetrit
  • Ehitatud 1940, kapitaalremonditud 2018
  • Parkimiskohad hoone alumisel õuealal
  • Elektriauto laadimisvõimalus puudub

Tavastia Privacy magamiskohad erinevates ruumides

  • Alumine korrus
  • Tuba 1 (3 in): 3 voodit 80x200 cm
  • Tuba 2 (3 in): 3 voodit 80x200 cm
  • Tuba 3 (3 in): 3 voodit 80x200 cm
  • Kabinet (2 in): 1 diivanvoodi 140x200 cm
  • Eluköök/Saal (4 in): 4 diivanvoodit 75x190 cm
  • Ülemine korrus
  • Tuba 1 (3 in): 2 voodit 120x200 cm, 1 voodi 80x190 cm
  • Tuba 2 (2 in): 2 voodit 80x200 cm
  • Tuba 3 (2 in): 2 voodit 80x200 cm
  • Aatriumi alkovi (1 in): 1 voodi 80x200 cm
Tavastia Privacy's on kokku 23 magamiskohta (kui 120 cm voodites magab 2 inimest, on kohti 25). Peasaali diivanvoodite voltimispadja saab avada ja panna põrandale, tekitades 150x190 cm suuruse magamiskoha põrandale.

Meie lisateenused Tavastia Privacy'le