Evo Syväjärvi

Hämeenlinna – Metsik tagasitõmbumine igaks puhuks
Evo matkaala lähedal asuv Syväjärvi on loodusearmastajate unistuste sihtkoht, kuhu maailma mürad ei ulatu! Tumeda veega järve kaldal asuv kompleks koosneb mitmest hoonest, mis pakuvad ruumi ja tegevusi lõõgastavaks koosolemiseks, koosolekute pidamiseks, aruteludeks või isegi perepidudeks.

Otsid kohta kalastamiseks, konverentside pidamiseks või sõpradega koosolemiseks? Evo Syväjärvi on sinu pelgupaik, peidetud Evo matkaala lähedal Syväjärvi järve ääres, eemal linnamürast ja uudishimulistest silmadest. See sihtkoht pakub mitmeid hooneid, mis pakuvad ruumi ja tegevusi juhuslikeks kogunemisteks, konverentsideks, aruteludeks või pereüritusteks.

ÜLDINFO: Evo Syväjärvi hõlmab kuue hektari suurust metsikut maakonda, millel on oma rand, järveäärne saun, katusealune varjualune ja lõkkekoht. Majutust pakuvad kajakad Syväjärvi järve ääres, sobides kalameestele, loodusearmastajatele ja neile, kes otsivad rahu kajutielus.

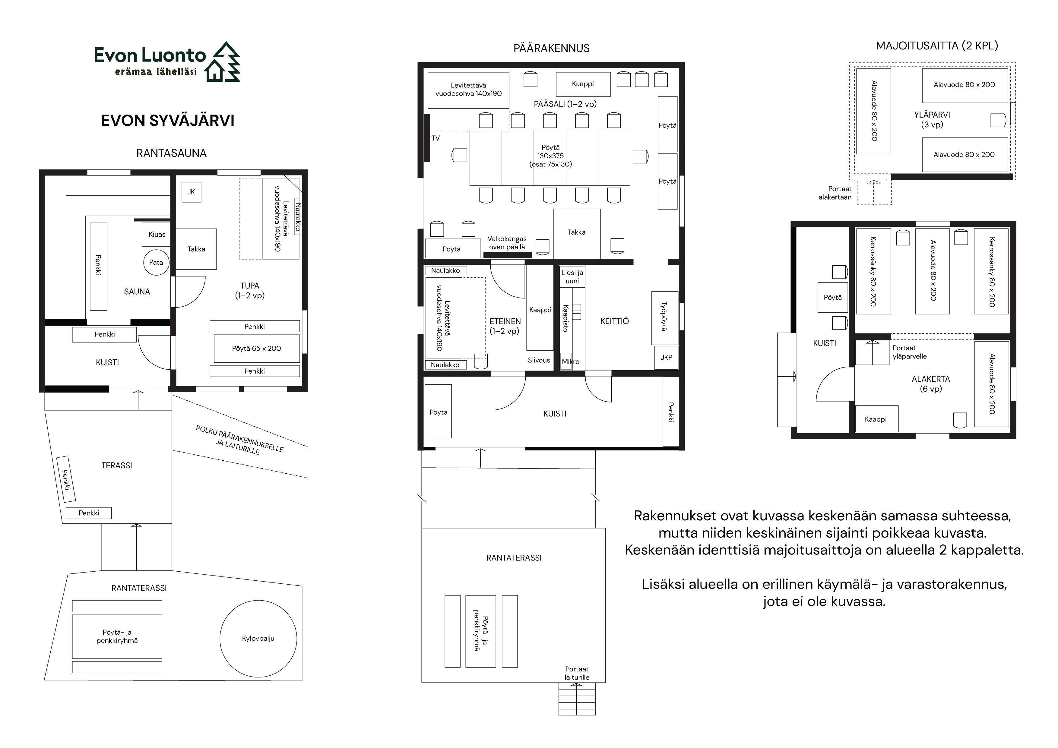
LOUNGE/KONVERENTSI RUUMID: Peahoone mahutab umbes 20 inimest einestamiseks, seltskondlikuks ajaveetmiseks, konverentsideks või koosolekuteks. Varustatud 42-tollise lameekraaniga televiisori ja arvutiühendusega. Järvesauna hoone sisaldab kamina ruumi traditsiooniliste Soome mööbliga, kaminat, diivanit ja külmik-sügavkülmikut.

MAJUTUS: Kaks eraldi majutushoonet järve ääres. Iga hoone mahutab 8 inimest: 5 voodikohta esimesel korrusel ja 3 katusel. Lisamajutus 2-4 inimesele peahoones, kokku 20 voodikohta. Tekid ja padjad on tagatud.

KÖÖK: Hästi varustatud köök jooksva sooja ja külma veega, lauanõudega 20 inimesele, elektripliidi ja ahjuga, külmik-sügavkülmik, mikrolaineahi ja Moccamasteri kohvimasin.

SAUN JA WC-D: Järvesaun: Puiduküttega saun kuni 10 külalisele, külma joova veega ja küttega pesuvesi. Kaks kuiva tualetti asuvad peahoone ja majutushoonete vahel.

VÄLIRUUMID JA MULLIVANN: Avatud terrass pingidega peahoone ees. Lõkkekoht ja katusealune varjualune järve ääres. Köögikatuse varjualune, kalatöötlusala, 8 aerupaati ja 3 kail.

KALAPÜÜK, PAADISÕIT JA VÄLIKÜLMADE: Syväjärvi järv saab igal aastal umbes 2500 kilogrammi lõhet, pakkudes suurepäraseid kalapüügivõimalusi aastaringselt.  Tegevused hõlmavad lantide ja lendõnge kasutamist ning talvist jääl püüki, kõik ilma püügipiiranguteta.

HINNAD: Baasbroneering sisaldab majutust 20-25 külalisele, peahoone rajatisi, 8 aerupaati, järvesauna, katusealust varjualust ja lõkkekohta. Lisateenused saadaval: lõppkoristus, mullivanni rent, voodipesu, rätikud, kalapüügi õigused ja varustus, programmiteenused, catering ning sauna/mullivanni ettevalmistus. Kõik lisateenused tuleb broneerida vähemalt 14 päeva enne saabumist.

PAKKUMISE PÄRING: Kiiresti saage teada oma hind, täites pakkumise päringu vormi. Evo Syväjärvi pakub taskukohaseid hindu eriti väljaspool turismihooaega ja nädalavahetusi, muutes selle ideaalseks metsikuks tagasitõmbumiseks! Avastage Evo Syväjärvi oma järgmise kalaretke, ärilise tagasitõmbumise või lõõgastava puhkuse jaoks Soome looduse keskel!

Evo Syväjärvi põhiteave

  • 1–50 külalist päevakasutuseks
  • 1–21 magamiskohta 7 magamistoas
  • Konditsioneer peahoones ja majutushoonetes
  • Jooksev vesi köögis
  • Nõud vähemalt 25 inimesele
  • Toidu-, joogi- ja serveerimisnõud
  • 2 kaminat
  • Puuküttega saun järve kaldal
  • Grillikoht õues (ilma palligrillideta)
  • Laiekraaniga televiisori (muid AV-seadmeid pole)
  • Valge ekraan esitluste jaoks
  • Kümblustünni 6 inimesele järve kaldal
  • Asukoht järve kaldal
  • Suviti kasutatav paat
  • Kalastamisvõimalus

Vahemaad ja lähedal asuvad kohad

Hinnanäited Evo Syväjärvel

  • 20 külalise ööbiv iseteeninduspuhkus või -pidu alates 32 €/in/öö
  • 15 külalise ööbiv iseteeninduskoosolek alates 56 €/in/öö
  • 20 külalise nädalavahetuse pidu (R–P) alates 60 €/in/nädalavahetus
  • 20 külalise iseteeninduslik tervisepäev umbes 37 €/in/öö
  • 15 külalise ööbiv koosolek alates 48 €/in/öö
  • 15 külalise nädalavahetuse koosolek (R–P) alates 80 €/in/nädalavahetus
Märkus: Ülaltoodud hinnad on orienteeruvad ja kehtivad hooajavälisel ajal. Hooajal on hinnad kõrgemad. Teeme siduva pakkumise igale grupile vastavalt ajale, külaliste arvule ja rendi kestusele. Jätame endale õiguse muuta meie teenuste hindu, mis on avaldatud kolmandate osapoolte veebilehtedel.
Syväjärventie 127 16970 Hämeenlinna.

Villa põhiandmed

  • Kogupindala 190 ruutmeetrit
  • Ehitatud 1980
  • Parkimiskohad õuealal
  • Elektriauto laadimisvõimalus puudub

Evo Syväjärvi magamiskohad erinevates ruumides

  • Majutusaitad (2 tk)
  • Pööning (3 in): 3 voodit 80x200 cm
  • Alumine korrus (6 in): 4 alumist voodit, 2 ülemist voodit, kõik 80x200 cm
  • Peahoone
  • Saal (1–2 in): Lahtikäiv diivanvoodi 140x190 cm
  • Esik (1–2 in): Lahtikäiv diivanvoodi 140x190 cm
  • Rannasaun
  • Tuba (1–2 in): Lahtikäiv diivanvoodi 140x190 cm
Majutusaitades (2 tk) mahub magama kokku 18 inimest. Päärakennuse ja saunatoa diivanvooditel saab magada 3–6 inimest. Evo Syväjärvis on kokku magamiskohti 21 külalisele või 24 külalisele, kui päärakennuse ja saunatoa diivanvooditel magab 2 inimest.

Meie lisateenused Evo Syväjärvele